• Profil
  • Aktuell
  • Projekte
  • Kontakt
Victoria von Gaudecker Architektur
  • Profil
  • Aktuell
  • Projekte
  • Kontakt

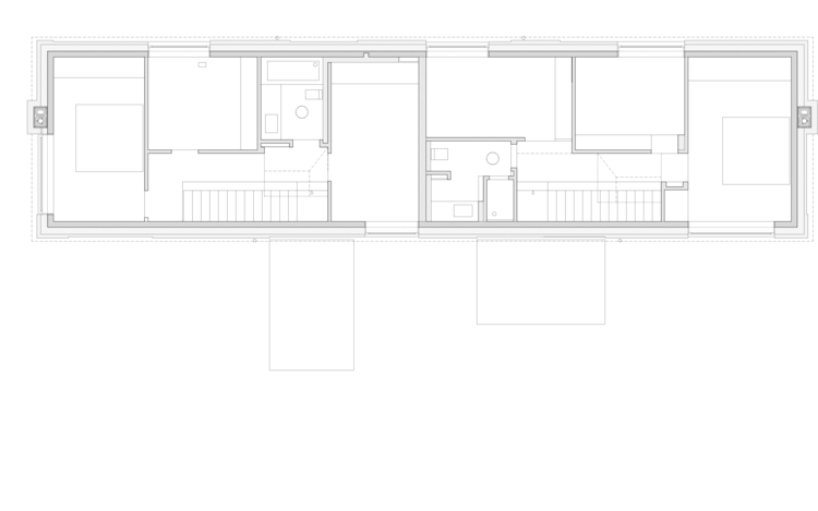
Haus F. Buchendorf

Passivhaus für zwei Familien

Bauherr:
privat

Bauvolumen:
390 m²

Leistungen:
Fertigstellung 2016

In Zusammenarbeit mit:
Axel Baudendistel LP 5-8 und Katahrina Leuscher
Mitabeiter: Daniel Pflaum, Mario Guyrov

VvG_Buchendorf_1.jpg
VvG_Buchendorf_2.jpg
VvG_Buchendorf_3.jpg
VvG_Buchendorf_4.png
HausF_Buchendorf_190411_5.jpg